Are you on the hunt for a highly modular and easy-to-build house that is quite durable and reliably built?
Shipping container homes in Louisiana are becoming more and more common nowadays, as they cost a lot less to build and maintain than traditional houses.
There’s also a wide variety of builders that specialize in building container homes with a variety of designs and operate in a wide variety of states including Louisiana, where houses are continuously getting more expensive to buy and build every year!
If you want to find out more about container homes in the Pelican State, keep on reading this guide as we walk you through a complete guide with everything you need to get started!
How Much Do Container Homes in Louisiana Cost?

-
Facebook
-
Twitter
-
Pinterest
-
Gmail
There are many factors that play a huge role in determining the price of a container home in Louisiana.
For example, aspects like the materials used for building as well as the size of the project, and the number of containers used can cause the price to vary.
Additionally, the cost of building the container home on your own will vary significantly when compared to buying a pre-built container home.
For instance, if you’re planning to build your own container home, it will usually cost you around $130 to $175 per sq ft, which includes labor, construction, and finishing.
On the flip side, if you buy a modular or a pre-built container house from a construction company, it should cost you a little more, ranging between $250 to $300 per sq ft.
Since container homes are also portable and usually built-in facilities that are outside Louisiana and shipped there, the shipping costs can slightly vary, but not always.
Although you’ll be saving up more if you take the DIY route and build the house on your own, I highly recommend that you let a professional container home builder do the job.
In addition to saving you the hassle and time of building the house yourself, their higher prices will usually include designing the house, planning the floors, procurement of materials, as well as plumbing, electric works, and installing various appliances in the house.
5 Container Homes for Sale You Can Buy Right Now
If you’re planning to buy a pre-built container home in Louisiana, here are some of the best options that you can consider, which can also give you a better insight into the average prices and general designs offered by companies that operate there:
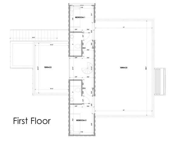
1. BOXY 3 x 40 Container House
- Price: starting from 150,000
- Number of containers used: 3
- Container sizes: 40 ft long x 8 ft wide x 8 ft 6 in high
- Interior Size: 960 sq ft
- Number of bedrooms: 2
- Number of bathrooms: 2
- Standout Features: offers a large second-floor terrace with direct outdoor access
- Manufacturer: BOXY Constructions
Kicking off the list with one impressive and cost-effective house that bears the minimalist aesthetics of a container house with a unique modern touch!
The BOXY house is made up of two floors with an outdoor staircase that leads to a wide outdoor terrace that overlooks both front and back yards.
This design allows for excellent use of internal space on both floors, as you get plenty of leg room on the bottom floor where the dining and living room in addition to ample separation space between the two bedrooms on the second floor.
2. Catalan 2027
- Price: $200 to $300 per square foot
- Number of containers used: unspecified
- Container sizes: 40 ft long x 8 ft wide x 8 ft 6 in high
- Interior Size: 2,027 sq ft
- Number of bedrooms: 3
- Number of bathrooms: 2.5
- Standout Features: combines the living room and dining room with the kitchen for a massive “grand room” design.
- Manufacturer: Logical Homes
The Catalan 2027 is an ideal solution if you only have a narrow lot to build your house on. The entire house takes up a space of around 81 ft long x 32 ft wide, so it can fit over a 40 ft wide lot very easily.
This design features a large garage that can house up to 2 vehicles along with a large room that combines your dining room, living room, and kitchen, giving you a wonderful studio-like experience while keeping the bedrooms and bathroom separate and private.
3. 320 S
- Price: starting from $55,900
- Number of containers used: 1
- Container sizes: 40 ft long x 8 ft wide x 8 ft and 3 inches high
- Interior Size: 300 sq ft
- Number of bedrooms: 1
- Number of bathrooms: 1
- Standout Features: highly customizable exteriors and interiors with optional carry-on wheels for added mobility
- Manufacturer: The Containers Company
This one features a 300 sq ft container with a single bedroom, bathroom, and a built-in kitchen for sustainable living. The durability of the container makes it ideal for withstanding natural disasters too.
The container is highly customizable, with options to change various colors and materials as well as including carry-on wheels that allow you to tow the entire house for mobility.
4. Navajo 960
- Price: Starting from $195,000
- Number of containers used: 4
- Container sizes: 40 ft long x 8 ft wide x 9 ft 6 inches high
- Interior Size: 960 sq ft
- Number of bedrooms: 2
- Number of bathrooms: 2
- Standout Features: a symmetric design that maximizes the use of the limited space
- Manufacturer: Meka Modular Constructions
The Navajo 960 is an excellent choice if you’re looking for a cottage or a cabin-designed container home.
Despite being only 960 sq ft, the Navajo features 2 identical bedrooms that mirror each other. Each one of them can fit a relatively large bed and has its own en-suite bathroom and walk-in closet.
Both bedrooms open up to a spacious living and dining room area with immediate access to the kitchen.
The house can be a little pricey for its size but it’s an excellent choice if you’re all planning to use the property commercially, such as Airbnb.
5. Elbar Mansion
- Price: Starting from $115,000
- Number of containers used: 2
- Container sizes: 40 feet long, 8 feet wide, 8 feet 6 inches high
- Interior Size: 640 sq ft
- Number of bedrooms: 2
- Number of bathrooms: 1
- Standout Features: Highly affordable full house that comes ready with its own air conditioning system and insulation to suit the warm summer in Louisiana
- Manufacturer: Elbar Tiny Living

-
Facebook
-
Twitter
-
Pinterest
-
Gmail
Lastly, the Elbar Mansion is an excellent choice for anyone who’s looking for a convenient house that won’t break the bank!
This one is a little smaller than most options on the list, except for the 320 S. But unlike the 320 S, this one is suitable for a small family, especially if you’re looking for a well-insulated house with an excellent built-in air conditioning system.
3 Best Container Home Builders in Louisiana
Here’s a quick look at some of the best container home builders in the state:
1. BOXY Constructions
This one is based in New Iberia, Louisiana, and is a family business founded by two brothers with excellent experience in container house building and designing.
The company doesn’t offer a variety of options, but they’re quite flexible and work with clients to optimize and tweak the designs to their liking.2. Logical Homes
Logical Homes is one of the popular container home builders that are known for shipping their container houses all over the country, despite having their head office in Austin, Texas.
One of the best things about this company is that they offer a huge range of container home designs to suit all kinds of budgets.
3. The Containers Company
The Containers Company is another container home builder that is based in New Orleans, Louisiana.
The company features a small team of highly experienced builders and designers that are very easy to work with and offer an incredible range of customization, allowing you to adjust the exterior, interior, flooring, and more!
Are Container Homes Legal in Louisiana?
Louisiana is one of the few states that fully legalize the use of shipping containers in building houses.
With that being said, the legality of building container houses within the state may vary from one municipality to another, so it’s always best to err on the side of caution and consult your local authority before carrying on with the project.
Financing Your Container Home in Louisiana
Shipping container homes are usually much more affordable than regular housing. However, if you still need a loan to finance your dream container house, there are still plenty of options to consider.
Here’s a quick look at some of the options that can offer loans to build or buy a container house in Louisiana:


